Двуспальные апартаменты в Лимассоле, Potamos Germasogeia
- Продажа недвижимости
- Статус: Готов к заселению
Оставить заявку
- Спальни: 2
- Мебель: Частично
- Бассейн: Общий
- Ванные: 2
- Тип недвижимости: Апартаменты
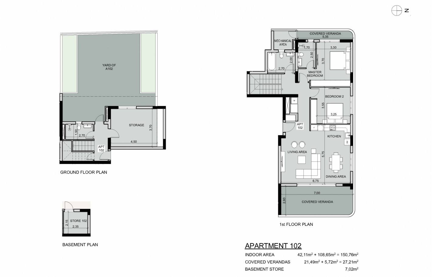
- Крытая площадь: 262.44 м²
- Близость к инфраструктуре: 5 мин.
- Расстояние до моря: 500 м
Двуспальные апартаменты в Лимассоле, Potamos Germasogeia
Цена: 2000000 € · Площадь 262 м² · 2 спальни · 500 м до моря · район Potamos Germasogeia, Лимассол
Район Potamos Germasogeia в Лимассоле предлагает гармонию между морским воздухом и городской инфраструктурой: в шаговой доступности магазины, рестораны и удобные транспортные связи, создавая комфорт для жизни и отдыха.
Апартаменты расположены в современном комплексе с продуманной архитектурой и надежной охраной, что гарантирует приватность и спокойствие. Общий бассейн и зеленые зоны поддерживают высокий уровень комфорта и эстетики.
Просторная планировка с большими окнами наполняет жилье естественным светом. Современная оборудованная кухня и балкон с видом на окрестности создают удобство и приятную атмосферу для повседневной жизни.
Удобства: Кондиционер · Пол с подогревом · Солнечная батарея · Парковка · Кладовая · Балкон/терраса · Обустроенная кухня · Система безопасности · Детская Площадка · Сад
Это выгодное вложение в развивающийся район, идеально подходящее как для постоянного проживания, так и для аренды с перспективой роста ценности.
Свяжитесь с Cyprus Realty Center для просмотра или консультации.
Рекомендуем
Вы смотрели
Апартаменты в Лимассоле с одной спальней, Agios Tychonas
1
1
73.67 м²
Вилла с 4 спальнями в Троодосе, Prodromos
3
4
324.45 м²
Односпальные апартаменты в Лимассоле, Agios Nicholas
1
1
92 м²
Односпальные апартаменты в Лимассоле, Zakaki
1
1
78.33 м²



